Van Ankumspad 26, Dalfsen

429.500 k.k.

Kenmerken van de woning

  • Adres Van Ankumspad 26
  • Stad Dalfsen
  • Postcode 7721 AK
  • Bouwjaar 1992
  • Volume 356 m³
  • Prijs 429.500 k.k.
  • Perceeloppervlakte 111 m²
  • Woonoppervlakte 101 m²
  • Tuinoppervlakte 24 m²
  • Tuinligging Noord
  • Verdiepingen 4
  • Kamers 5
  • Slaapkamers 4

Over de woning

Sommige woningen hebben de 'wauw factor'! En dat is bij deze hoekwoning gelegen in een rustig hofje, in het centrum van Dalfsen, absoluut het geval!

Deze woning gebouwd in 1992, is in 2011 door de verkopers volledig gerenoveerd en tot op de dag van vandaag tot in de puntjes onderhouden en verzorgd.
Wat deze woning ook echt onderscheidt is de verrassende ruimte die je binnen aantreft. Met 4 volwaardige slaapkamers en een ruime externe berging die volledig geïsoleerd en verwarmd is, biedt deze woning meer dan je zou verwachten. Daarnaast is deze woning zelf ook volledig geïsoleerd en voorzien van maar liefst 8 zonnepanelen, waardoor je kunt genieten van groene energie en extra kosten kunt besparen. Dit alles heeft geresulteerd in een
energielabel A.

De woning is dus werkelijk instapklaar, de ideale plek voor senioren die op zoek zijn naar comfort en rust en door de ligging middenin het centrum, alle boodschapjes lopend kunnen doen. Maar ook perfect voor starters die op zoek zijn naar een moderne woning. Op wat voor leeftijd je ook bent, iedereen zal zich hier direct thuis kunnen voelen.

De woning is gesitueerd middenin het centrum van het gezellige dorp Dalfsen met een ruim winkelaanbod. Maar doordat het gelegen
is in een hofje, biedt het veel privacy.
Tijd om even te ontspannen? Dan kun je terecht bij diverse restaurants gelegen aan de Vecht of een heerlijke wandeling over de
dijk met prachtige vergezichten is ook zeker aan te raden! Dit alles op loopafstand van de woning.

Het treinstation bevindt zich op 5 minuten fietsen van het appartement en in de buurt zijn er bushaltes aanwezig voor het
vervoer naar de steden Ommen en Zwolle. Ook is de Hessenweg, de verbindingsweg naar Zwolle (A28) en Ommen op 4 minuten rijden
afstand.

Kom je mee naar binnen?
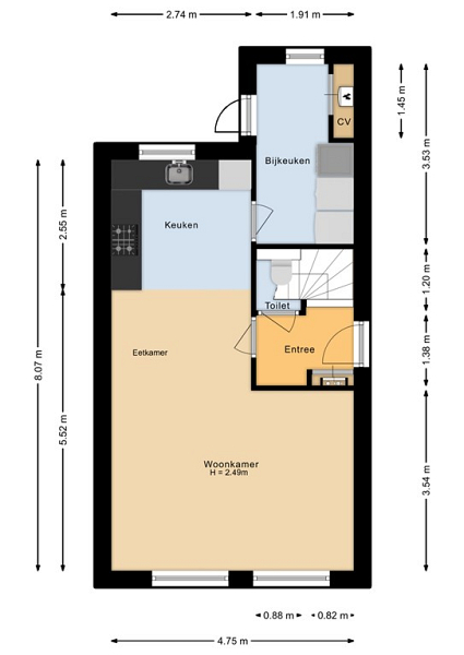
Via het openbare pad naast de woning kom je binnen in de hal. In de hal bevindt zich de meterkast met voldoende groepen, de garderobe, het toilet en de trapopgang naar de verdieping. Wij lopen gelijk door naar de woonkamer, daar wordt je direct omarmd door de warme en huiselijke sfeer. De gezellige zithoek is gelegen aan de voorzijde van de woning en door de vele raampartijen is deze ook heerlijk licht te noemen. Ook is er een airco unit aanwezig, deze kan verwarmen, maar ook koelen. Ideaal voor de warmere dagen!
Aan de achterkant van de woning is de moderne keuken gesitueerd. Deze is voorzien van veel kast- en werkruimte met tevens een 4-pits fornuis, afzuigkap, combi oven/ magnetron en en koelkast.

In de aangrenzende praktische bijkeuken bevinden zich de witgoedaansluitingen en de CV installatie. De huidige bewoners hebben bewust voor geen vaatwasser gekozen, maar in deze bijkeuken is hier nog meer dan genoeg ruimte voor. Ook is er voldoende opbergruimte aanwezig.
De deur in de bijkeuken brengt je naar de onderhoudsvrije achtertuin.

In de tuin is in 2011 een nieuwe geïsoleerde en verwarmde berging geplaatst (waarbij het dak ongeveer 10 jaar geleden nog is vernieuwd en goed is geïsoleerd).
De berging is ook voorzien van elektra en naast de enkele deur aan de zijkant, heeft deze berging ook een dubbele deur. Dus motorliefhebbers opgelet, het stallen is hier geen probleem!

Terug naar de hal, bereiken wij via de trapopgang de overloop op de 1e verdieping. Hier bevinden zich 3 slaapkamers en de badkamer.
Deze eigentijdse badkamer is uitgerust met een douchehoek, wastafel en een 2e toilet. Eén van de slaapkamers is ingedeeld als kastenkamer, deze gehele fraaie kastenwand, zal in de woning achterblijven.

En dan denk je; is dit alles? Nee zeker niet. Via de vaste trap op de overloop kom je uit op de 2e verdieping. Hier is ook een ruime overloop en een 4e slaapkamer.
En als extra verrassing is er ook nog een vliering aanwezig. Deze is via de vlizotrap op de overloop te bereiken. Ideaal voor het opbergen van spullen die je niet dagelijks gebruikt.

Tot slot;
Zoals genoemd straalt de woning kwaliteit uit. De houten kozijnen zijn onlangs geschilderd aan de buitenkant met een zeer hoogwaardige kwaliteit verf, het hemelwaterafvoer is vernieuwd, er zijn fraaie laminaatvloeren aanwezig en ook is de woning nagenoeg volledig uitgerust met elektrisch bedienbare rolluiken, wat extra comfort en privacy biedt.

Eigenlijk is het teveel om op te noemen! Dus kortom, ben je op zoek naar een instapklare woning, gelegen in het centrum van Dalfsen? Dan ben je van harte welkom aan het Van Ankumspad 26 te Dalfsen.

Nog even alle hoogtepunten op een rij:
-Zeer goed onderhouden en verzorgde woning.
-Voorzien van energielabel A.
-Nagenoeg volledig uitgerust met elektrisch bedienbare rolluiken.
-Gelegen in een rustig hofje, in het centrum van Dalfsen.
-De woning heeft 4 slaapkamers verdeeld over de 1e en 2e verdieping.
-Er is een extra vliering aanwezig.
-Vrijstaande ruime geïsoleerde en verwarmde berging.
-De woning is instapklaar en zowel voor senioren als starters interessant.

Plan een bezichtiging

Selecteer een dagdeel (optioneel)

* is verplicht

5 min. loop afstand       5 min. fiets afstand

Voorzieningen


Openbaar Vervoer


Overig


Bent u geïnteresseerd in deze woning?

Breng een bod uit