Koningsvaren 7, Dalfsen

349.500 k.k.

Kenmerken van de woning

  • Adres Koningsvaren 7
  • Stad Dalfsen
  • Postcode 7721 HM
  • Bouwjaar 1981
  • Volume 451 m³
  • Prijs 349.500 k.k.
  • Perceeloppervlakte 173 m²
  • Woonoppervlakte 122 m²
  • Tuinoppervlakte 66 m²
  • Tuinligging -
  • Verdiepingen 3
  • Kamers 5
  • Slaapkamers 4

Over de woning

Ruime eengezinswoning (122m2) in de Polhaar wijk is op zoek naar een nieuwe eigenaar!

In deze groenrijke en kindvriendelijke woonomgeving is deze tussenwoning gelegen en beschikt over 4 ruime en volwaardige slaapkamers. Tevens is het een groot voordeel dat de badkamer in 2020 volledig is vernieuwd en de gevels en de vloer van de woning al zijn nageïsoleerd!

De Koningsvaren is een rustige en brede straat, op goede afstand van de uitvalswegen (Hessenweg en de A28) en er zijn in de wijk bushaltes aanwezig met verbinding naar de steden Ommen en Zwolle. Er is om de hoek een ruim speelveld met diverse speeltoestellen, zandbak, waterbaan en een voetbalveld met doelen aanwezig. Het sfeervolle centrum van Dalfsen, welke op korte afstand te bereiken is, heeft een breed aanbod aan winkels en gezellige horeca. Ook diverse scholen, sportmogelijkheden en het verenigingsleven zijn binnen enkele loop- en fietsminuten te bereiken. Ga je liever met de trein? Het treinstation is op 10 minuten fietsen van de woning gelegen. Of heb je een auto? Parkeren is geen probleem, aan de voorzijde van de woning is er voldoende parkeergelegenheid aanwezig.

Deze type woningen staan bekend om veel ruimte. Zeker ideaal voor starters, een jong gezin of thuiswerkers welke extra ruimte nodig hebben. En met toevoeging van een vleugje liefde, creëer je bij deze woning de gezellige sfeer die past bij jouw levensstijl, zodat je je gelijk thuis voelt!

Zullen wij een rondje maken?
Bij binnenkomst betreed je de hal met daarin de meterkast, het toilet, de trap naar de eerste verdieping met trapkast en de toegang tot de woonkamer. De woonkamer is uitgerust met een keurige laminaatvloer en door de geïsoleerde tussenwand is er voldoende ruimte voor een comfortabele zithoek en een aangename eethoek. Maar ook ideaal als je kinderen in de woonkamer spelen, zodat jij met je vrienden heerlijk ongestoord kunt tafelen in de eethoek! Door de indeling van de voortuin en het feit dat het een brede straat betreft, heb je ook veel privacy in de woonkamer.

De keuken biedt voldoende werk-en opbergruimte en beschikt over de nodige inbouwapparatuur zoals een vaatwasser, koelkast, 4-pits gasfornuis en afzuigkap.

Aansluitend aan de keuken bevindt zich de bijkeuken. Deze ruimte is geïsoleerd en voorzien van een keukenblok met warm en koud water en een inbouwkast. Tevens is vanuit deze ruimte middels een vlizotrap een bergzolder te bereiken voor het opbergen van spullen welke je niet elke dag gebruikt.

Via een deur in de bijkeuken bereik je de ruime achtertuin, met achterom ingang en een vrijstaande houten berging. De tuin is gelegen op het noordwesten. En door de diepte kun je hier heerlijk genieten van de zon!

We gaan door naar boven! Op de eerste verdieping zijn 3 comfortabele slaapkamers aanwezig en de moderne, vernieuwde badkamer. De badkamer is in 2020 geplaatst en voorzien van een inloopdouche, dubbele wastafel met meubel, verwarmde spiegel en een toilet.

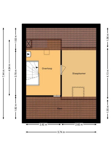
Ook de tweede verdieping is middels een vaste trap te bereiken. Op de voorzolder is de CV opstelling gesitueerd en hier zijn de aansluitingen voor het witgoedapparatuur. Vanuit de voorzolder kom je uit in de 4e slaapkamer met een ruim dakraam. Achter de knieschotten is er veel ruimte voor het opbergen van spullen.

Algemeen:
-Ruime eengezinswoning, gelegen in de kindvriendelijke en groene wijk de Polhaar.
-De badkamer is modern en vernieuwd in 2020.
-De gevels en de vloer zijn nageïsoleerd en de woning is voorzien een energielabel C.
-Aanvaarding op korte termijn is mogelijk.
-Alle voorzieningen van Dalfsen zijn vanuit de woning goed bereikbaar, evenals het openbaar vervoer en de uitvalswegen.

Ben je nieuwsgierig geworden en wil je de mogelijkheden onderzoeken om van deze woning jouw (t)huis te maken?
Neem contact op voor een bezichtiging, je bent van harte welkom.

Plan een bezichtiging

Selecteer een dagdeel (optioneel)

* is verplicht

5 min. loop afstand       5 min. fiets afstand

Voorzieningen


Openbaar Vervoer


Overig


Bent u geïnteresseerd in deze woning?

Breng een bod uit